Introduction
Steel Hanger
2.1 Steps for the design of steel hanger
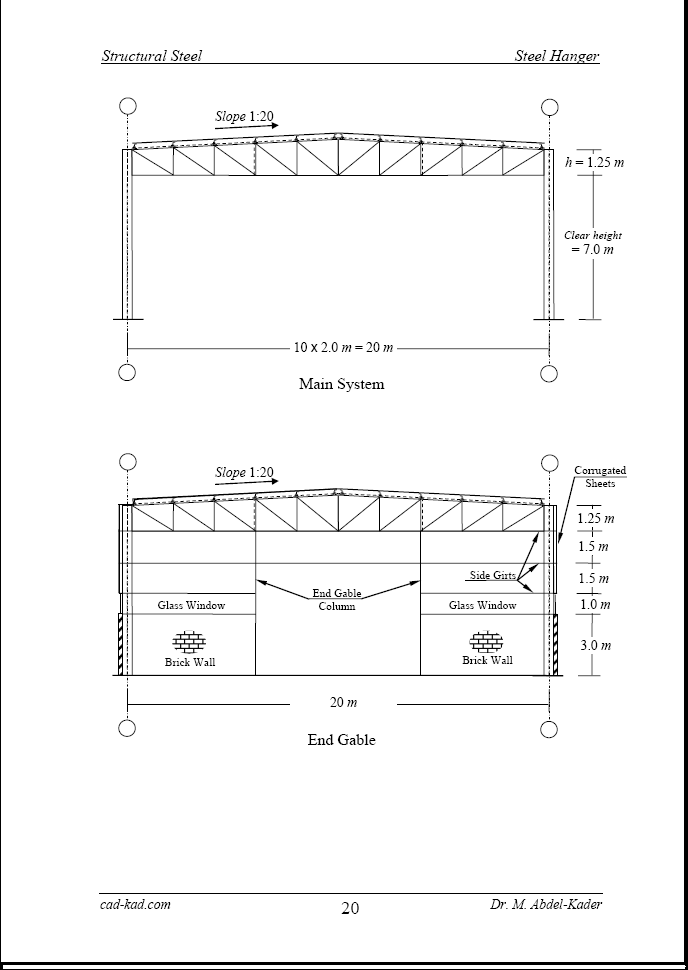
2.2 Choice of the system
2.3 Drawing of the general layout


2.4 Calculation of loads and internal forces
2.5 Design of structural elements







2.6 Design of connections






2.7 Drawing of details

















